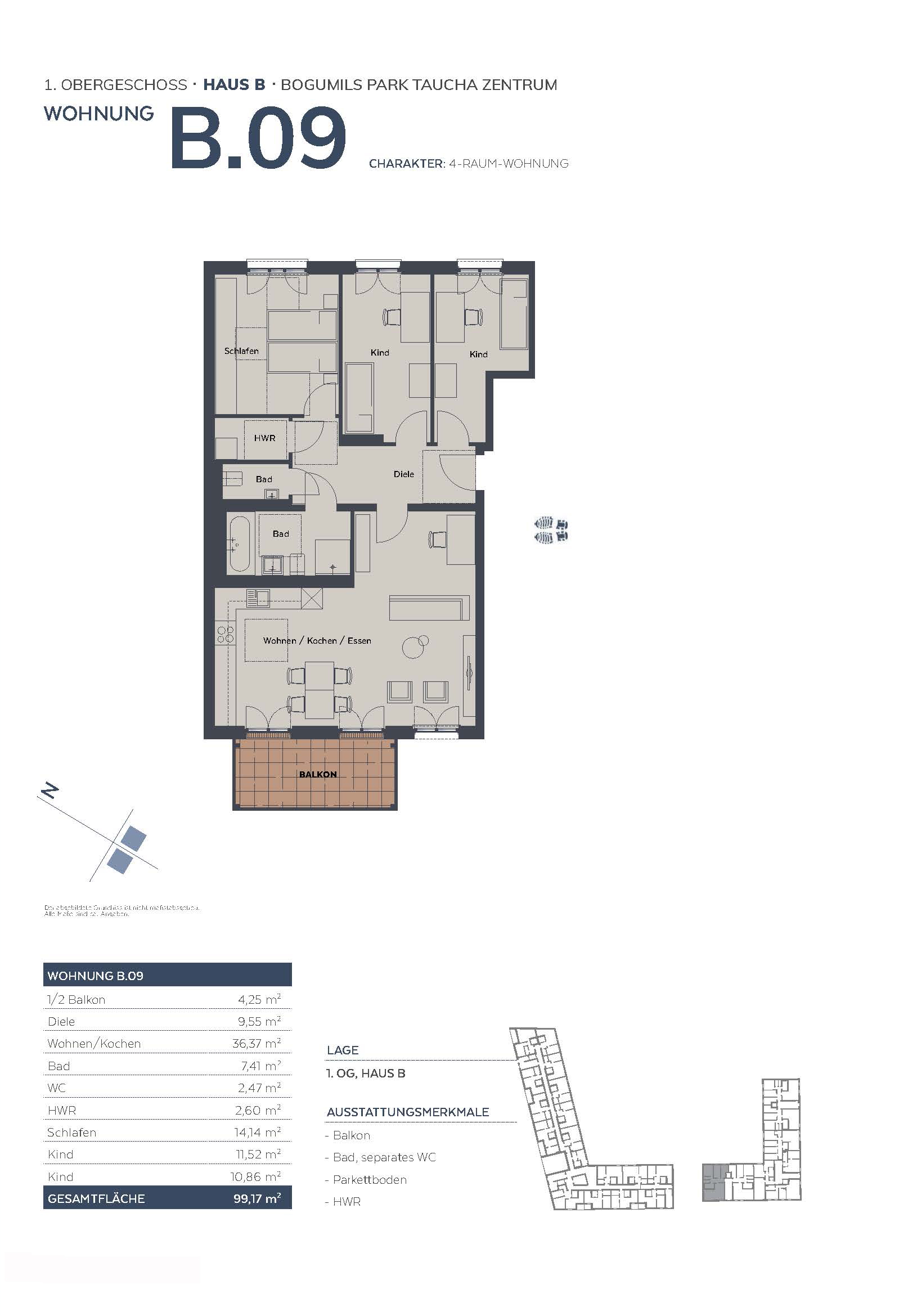
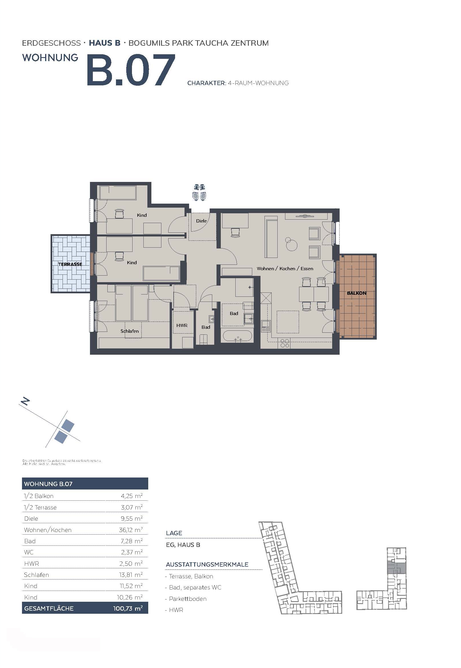
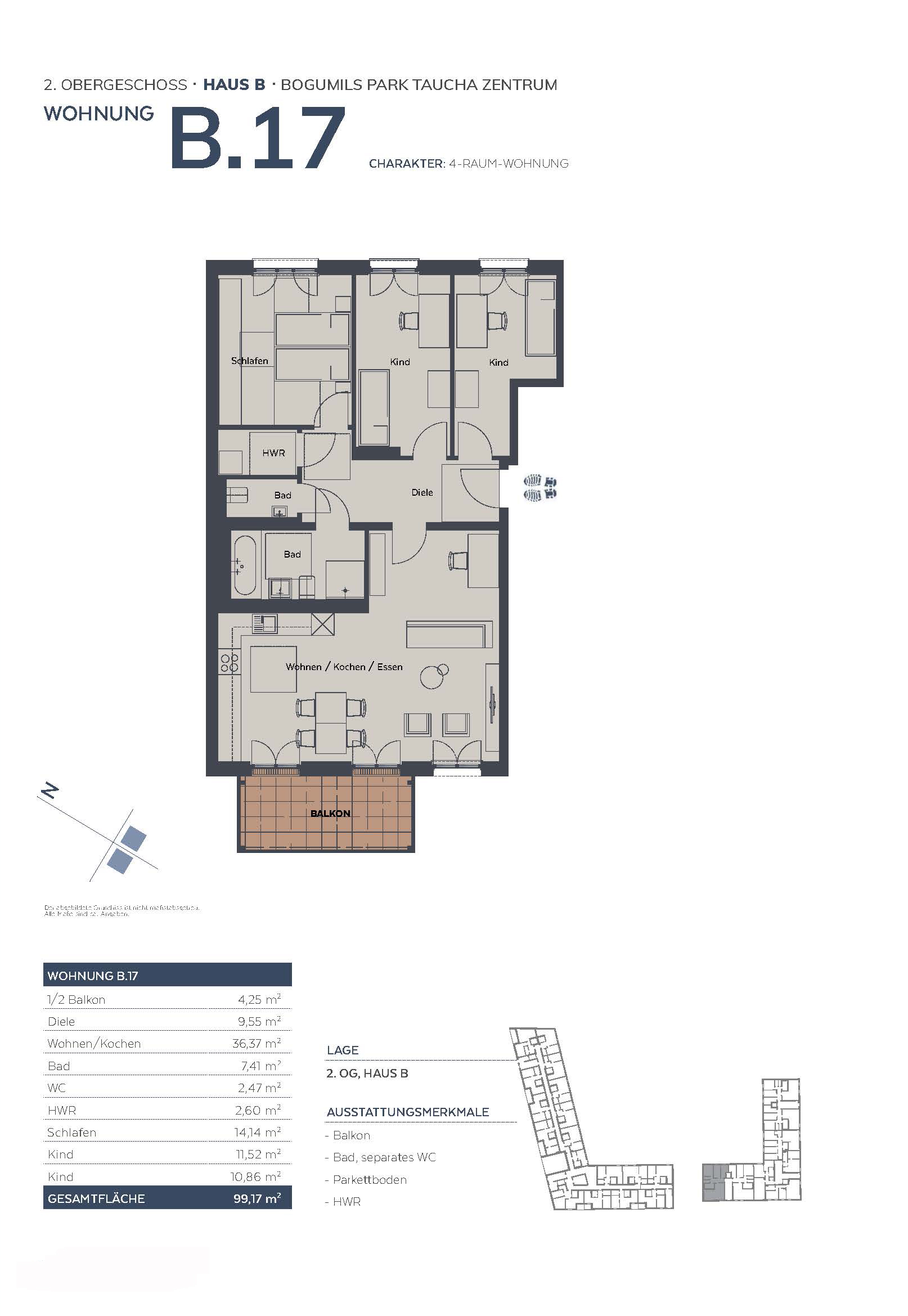
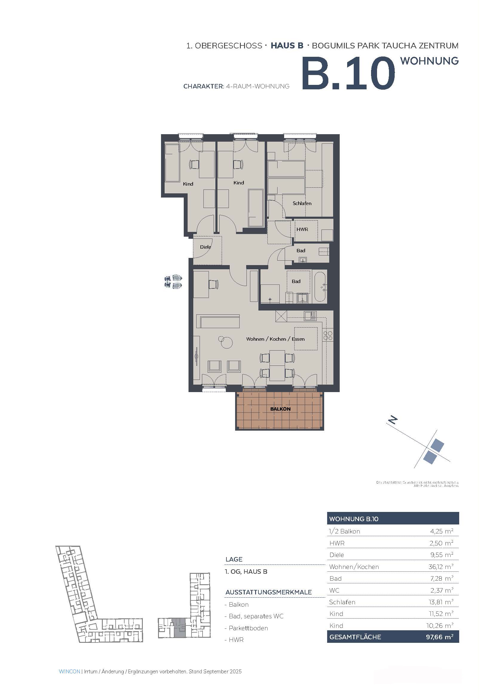
Mit dem Projekt “WOHNEN Bogumilspark, Wohnquartier Taucha Zentrum” entsteht in zentraler Lage von Taucha ein zukunftsweisendes Wohnquartier, das Nachhaltigkeit, modernes Design und höchste Bauqualität vereint.
Die modular konzipierten Häuser in innovativer Holzhybrid-Bauweise bieten ein ökologisch verantwortungsbewusstes, energieeffizientes und architektonisch ansprechendes Zuhause. Optimale Grundrisse für Familien, Paare und Singles – maßgeschneidert für unterschiedliche Lebensphasen und Bedürfnisse.
Das Wohnquartier vereint modernes Lebensgefühl mit ökologischer Verantwortung und bietet Investoren wie Eigennutzern ein nachhaltiges, wertstabiles Immobilienkonzept.





